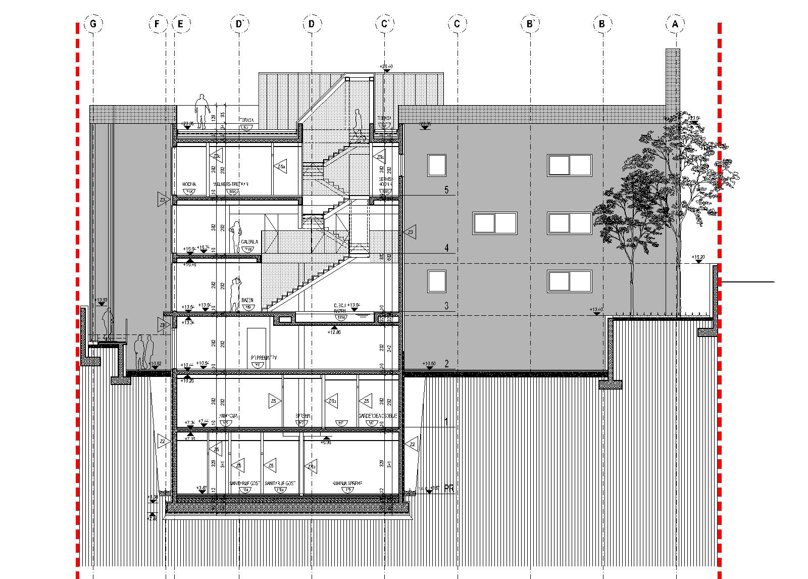
HOTEL 4****_DUĆE, DUGI RAT
lokacija:Duće, Dugi Rat
investitor:privatni
faza projekta: glavni projekt, izvedbeni projekt
površina parcele:4110 m²
bruto površina:10096,96 m²
projekt:2014-2015
autor/glavni projektant:
Ivan Novaković, mag.ing.arh.
lokacija:Duće, Dugi Rat
investitor:privatni
faza projekta: glavni projekt, izvedbeni projekt
površina parcele:4110 m²
bruto površina:10096,96 m²
projekt:2014-2015
autor/glavni projektant:
Ivan Novaković, mag.ing.arh.